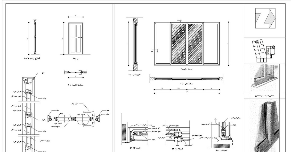
تفاصيل الابواب الخشبية
Look This Also
الصين تخصيص 20 دقيقة النار تقييما باب الخشب المصنعين والموردين والمصنع رخيصة الثمن 20 دقيقة النار تقييما باب الخشب volno
أبواب خشبية خارجية للمباني السكنية والعامة أنواع التصميم والأحجام أبواب خشبية خارجية للجهاز السكني والبواب في الهواء الطلق 24698 81
المعاصرة تصميم باب دخول 3d تأثير خشبي مزدوج باب المدخل الرئيسي تصميم الجوز أبواب خشبية صلبة buy تصميم باب المدخل الرئيسي الخشبي المزدوج باب الدخول المعاصر أبواب خشبية صلبة
تعلم كيف تبني منزلك on twitter الابواب اهمية تاسيس فرزة تكون مخصصة للربل في حلوق الابواب الحديدية ذات الدرفة الواحدة وذلك بهدف منع دخول الغبار وغير ذلك من المزايا الاخرى https t co ctcw7l7or1
تركيب باب خشب صناعة الابواب الخشب ورشة نجارة صناعة الابواب الخشبية ابواب خشب ابواب خشب جرار باب مروحه عمل شب door design interior door design classic bedroom
تفاصيل الابواب اوتوكاد جميع انواع الابواب الخشبية اوتوكاد شبكة الهندسة المعمارية تصميم ديكور انشاء مبانى برامج معمارية اخبار معمارية مسابقات معمارية architectural design architecture news
الصين تخصيص الداخلية خشب الساج باب خشبي التصميم الأوروبي المصنعين والموردين المصنع مباشرة بالجملة haona
الصين تخصيص الباب الخشبي النار hpl المصنعين والموردين والمصنع رخيصة الثمن الباب الخشبي النار النار هبل فولنو
bs476 المملكة المتحدة شهادة الخشب أبواب مقاومة للحريق buy المملكة المتحدة شهادة الخشب حريق الأبواب المملكة المتحدة شهادة الخشب حريق الأبواب المملكة المتحدة شهادة الخشب حريق الأبواب product on alibaba com
الحديثة خشب منزلي الأبواب الداخلية تصاميم المنزل buy الخشب الباب باب خشبي منزلق آلية الخشب باب المرآب product on alibaba com
http www al edu com wp content uploads 2013 12 d8 a7 d9 84 d8 a7 d8 a8 d9 88 d8 a7 d8 a8 d9 88 d8 a7 d9 84 d8 b4 d8 a8 d8 a7 d8 a8 d9 8a d9 83 pdf
https www uotechnology edu iq dep architecture english lectures second class building construction building construction p4 pdf























